ÃßõµÇ¾ú½À´Ï´Ù.
|
| ´ÜÃà URL: https://humoruniv.com/pds1393450 URL º¹»ç |
|
|
| ¡ã ´ÙÀ½±Û | ¾ö¸¶¶û ³ª¶û Àý´ë īī¿À³»ºñ ¾È¾¸ | ºÒ²Éµ¹³ª¹« |
|
2025-12-16 [11:41] |
| ¡å ÀÌÀü±Û | ½ÇÁ¦ ¿¬¾ÖÀÇ ¸ð½À | ³¾Á¡½É¹¹¸ÔÁö |
|
2025-12-16 [11:25] |
´ä±Û º£½ºÆ®
|
´ä±Û º£½ºÆ®1 |
È£À̺£º£ |
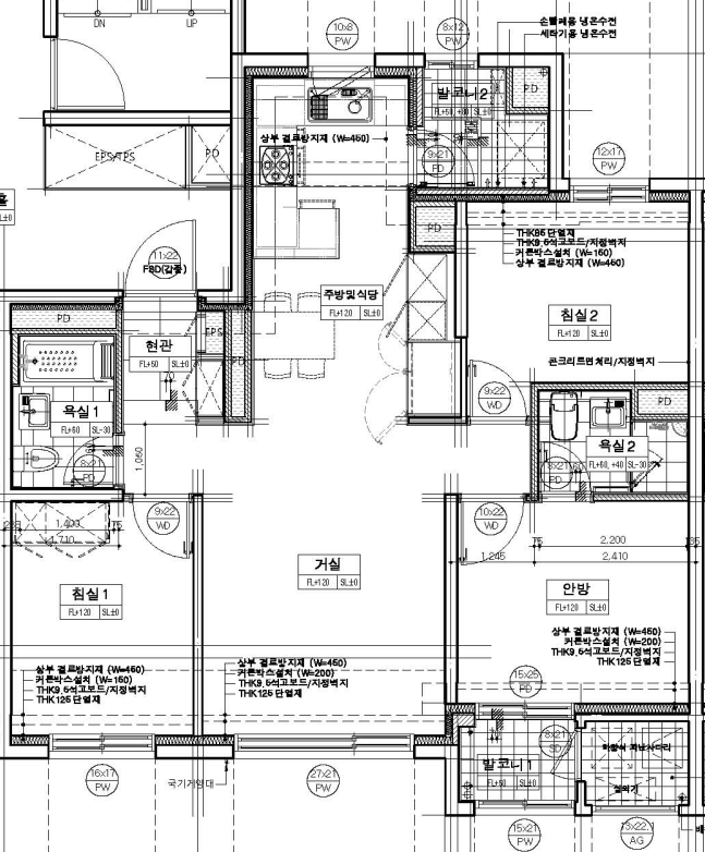
Á¦°¡ °úÇÐÀûÀ¸·Î Á¢±ÙÇØºÃ´Âµ¥ ±×¸²¼Ó ½´ÆÛ½Ì±Û ħ´ë°¡ 108°³³ª µé¾î°©´Ï´Ù 32ÆòÀÌ ¾Æ´ÏÁÒ [7]
|
262 0 |
|
2025-12-16 11:07 |
||||
|
´ä±Û º£½ºÆ®2 |
ÇѼÁø |
¾È³çÇϼ¼¿ä. Áö³ª°¡´ø °ÇÃà»çÀÔ´Ï´Ù. ÀÌ·± ¹èÄ¡·Î 84ŸÀÔÀÇ ¼³°è°¡ Á¸ÀçÇϱä ÇÏÁö¸¸, °¡±¸ÀÇ ½ºÄÉÀÏÀÌ À߸ø ±×·ÁÁ® ÀÖ¾î ÁýÀÌ Ä¿º¸ÀÌ´Â Âø½Ã°¡ ÀÖ½À´Ï´Ù. ½ÇÁ¦·Î µé¾î°¡º¸¸é Àú·¸°Ô ±×¸° °¡±¸µéÀÌ ²Ë Â÷°Ô µé¾î°¥ °Å¶ó Á¼¾ÆÅÍÁý´Ï´Ù. °¨»çÇÕ´Ï´Ù. [1]
|
179 0 |
|
2025-12-16 11:42 |
||||
|
´ä±Û º£½ºÆ®3 |
±ø°úÀå |
°Å½ÇÀ̶û ħ½ÇÀÌ °³ÀÛ¾ÆÁü¤»¤» [1]
|
109 0 |
|
2025-12-15 21:13 |
||||

|
|
±íÀº¾îºñ½º |
¤©¤· ħ½Ç2/3ÀÌ ½´ÆÛ½Ì±Û ħ´ë ³õ¾Æµµ ²ËÂü
|
10 |
|
2025-12-15 |
||||||
¹Ú»õ·ÎÀ̺´god |
ħ½Ç »ïºÐÀÇ ÀÌÀÌ ½´ÆÛ½Ì±Û ħ´ë ³õ¾Æµµ ²Ë Âü?
|
00 |
|
2025-12-16 |
|||||||
|
|
±ø°úÀå |
°Å½ÇÀ̶û ħ½ÇÀÌ °³ÀÛ¾ÆÁü¤»¤»
|
1090 |
|
2025-12-15 |
||||||
¾È´Þ·ç½Ã¾Æ |
°Å½ÇÀÌ 5¹ÌÅÍ ±¤ÆøÀ̶ó°í ÀûÇôÀÖÀ½..°Ô´Ù°¡ °Å½ÇÀ» 5¹ÌÅͶó°í Àâ¾ÒÀ» ¶§ ħ½ÇÅ©±âµµ ²Ï Å...±×·¡¼ ºÒ°¡´ÉÇÑ ±¸Á¶ °°À½.
|
00 |
|
2025-12-16 |
|||||||
|
|
³Û»õ²¿ |
ÀÌ·¯´Ù ¼ö¿µÀåµµ µé¾î°¡°Ù¾î
|
90 |
|
2025-12-15 |
||||||
|
|
²¿¸Í¾Æ»çÅÁ¸Ô¾î¶ó |
¹æÀ» ¤¸¤¤ Âɰ³³ù³×
|
190 |
|
2025-12-15 |
||||||
|
|
Å»ÃâÀºÁö´É¼ø |
´Ù¸¥ ¹æµé ´Ù Á¶±×¸¸ÇÒµí
|
20 |
|
2025-12-15 |
||||||
|
|
Å«¹æ¸ÁÀÌ |
40Æòµµ ¾Æ´Ï¶ó 32ÆòÀÌ...?
|
20 |
|
2025-12-15 |
||||||
|
|
ÄÚ»çÄ«·¹À̳ª |
°Å½Ç °³ Á¼À» °Í °°Àºµ¥ ¤»¤»¤»¤»¤»
|
20 |
|
2025-12-15 |
||||||
Áö¸®»ê»êÅä³¢ |
¿¾³¯¿£ °¡Á·µéÀÌ ´Ùµé °Å½Ç¿¡ ¸ð¿©¼ ¹ä¸Ô°í ±×·¨´Ù¸é ÀÌÁ¦ ¹Ù²î¾î°¡´Â´À³¦À̶ö±î ÀÌÁ¦ °Å½ÇÀÌ Á¼¾ÆÁ®µµ µÉ°Å°°´Ù´Â »ý°¢ÀÌ µé±äÇØ
|
150 |
|
2025-12-16 |
|||||||
ÇѼûºô·± |
°Å½Ç 5.2¹ÌÅͶó°í ½áÁ®Àִµð..
|
60 |
|
2025-12-16 |
|||||||
|
|
»çȸº¹ÁöÇаúA |
¿°º´ Á¸³ª°Ô Âɰ³³ù³×
|
60 |
|
2025-12-15 |
||||||
|
|
Ä«³ÉÀÌ |
¿¡¹Ýµ¥
|
00 |
|
2025-12-15 |
||||||
|
|
ÆòÈÀÇÀü¼±¸ |
¾ËÆÄ·ëÀ̶õ°Ô ÇÊ¿äÇØ...?
|
60 |
|
2025-12-15 |
||||||
°ø¼ºÀüÂ÷´Ü |
ÀÌ·± °Å... (Ãò¸¨)
|
180 |
|
2025-12-16 |
|||||||
ÆòÈÀÇÀü¼±¸ |
¹æ±¸¼® ¸·½ºº£¸£½ºÅ¸Ææ!
|
40 |
|
2025-12-16 |
|||||||
²ÜÀ̾ç |
¾ø¾îµµ »ó°ü ¾ø´Âµ¥ ÀÖÀ¸¸é Á¶¿Â³ª ÆíÇÔ¤»¤»
|
20 |
|
2025-12-16 |
|||||||
|
|
°ÇÀüÇÑ©ÁÝ·¯ |
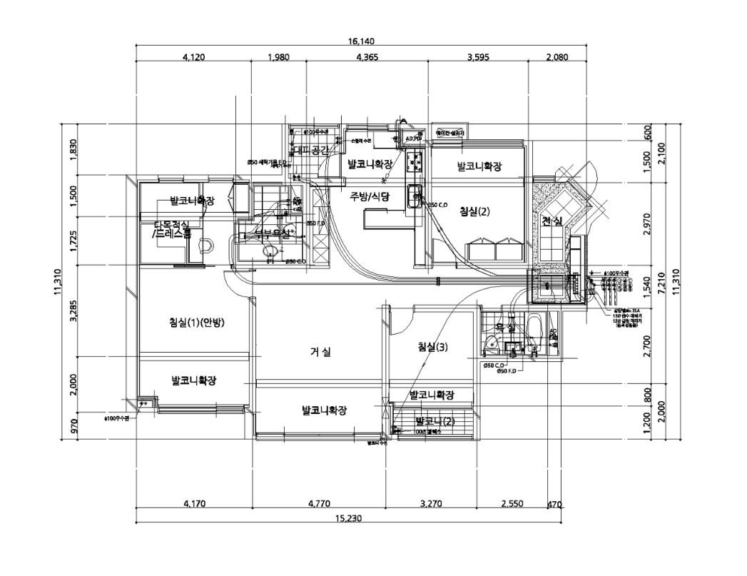
34Æò¿¡ Àú·± ±¸Á¶ÀÎ ½ÅÃà ¾ÆÆÄÆ® °¡ºÃ´Âµ¥ ¤©¤· °³³Ï¾îº¸À̵å¶ó ¾È¿¡ ½Ã°ø°£ ¾ÐÃàÀ» ÇØ³ù´ÂÁö ¹æÀÌ 4°³Àε¥ °Å½Ç ºÎ¾ýµµ ¾öû ÄǾî
|
110 |
|
2025-12-15 |
||||||
Leukerbad |
ÇØ¸®Æ÷ÅÍ´Â ¾ø±â ¶§¹®¿¡ ¹æÀÌ Á¿¸¸ÇØ¿ä.
|
40 |
|
2025-12-16 |
|||||||
·°Å°ºñŰÀÜ¾Æ |
Æ÷ÅÍ´Â ¾îÂ÷ÇÇ ´Ù¶ô¹æÀε¥ ³ÐÀÌ¿£ »ó°ü¾øÁö¾Ê³ª
|
10 |
|
2025-12-16 |
|||||||
µ¿³×ÈÆ³² |
¿ø·¡ 84¿¡ 4º£ÀÌ¸é º¸Åë Çö°ü,°Å½Ç ÆæÆ®¸® 2°³, ¿å½Ç2, ¹æ3+°Å½Ç1, ´Ù¿ëµµ½Ç1~2, µå·¹½º·ë1 Á¤µµ°¡ ¸¶Áö³ë¼±ÀÓ ¿©±â±îÁö¸¸ ÇÏ¸é °Å½ÇÁÖ¹æÀº 1ÀÚ·Î ³Ð¾îº¸ÀÌ°í °¢ °ø°£Àº µü »ýȰÇÒ ¼öÁØÁ¤µµÀε¥ Àú µµ¸éÀº °Å±â¿¡´Ù°¡ ¾ËÆÄ·ë2°³¸¦ Ãß°¡·Î »«°Çµ¥ ±×¸¸Å ´Ù¸¥¸éÀû ÁÙ¾îµç°ÅÀÓ ¾Æ¸¶ ħ½Ç°ú ¹æµéÀÌ ÇÔÁ¤Àϵí
|
30 |
|
2025-12-16 |
|||||||
ÇÑ¿©¿ì |
33ÆòÀÎ ¿ì¸®Áý¿¡¼ ¾ËÆÄ·ë 2°³¸¦ ´õ »Ì´Â´Ù´Â °ÅÀݾÆ? Èì... Á» ¹æµéÀÌ ÀÛ¾ÆÁú °Í °°±äÇѵ¥ ³ª¸§ ¾µ¸ð°¡ ÀÖÀ»µí.
|
40 |
|
2025-12-16 |
|||||||
|
|
±³°¼º±¸ |
µå·¹½º·ë °¡·Á¸é ¾Ëºü·ëÀÎÁö Áö¶öÀÎÁö °ÅÃİ¡¾ßµÇ´Â µ¿¼±³¶ºñ Áö¶öÀ̳×
|
41 |
|
2025-12-16 |
||||||
40075km |
º¸ÅëÀº ¾ËÆÄ·ë1À» ÆÄ¿ì´õ·ëÀ̶ó°í ÇØ¼ ¸Ó¸® ¸»¸®°í ¿ÊÀ» À԰ųª ÈÀåÇϰųª ÇÏ´Â °ø°£À¸·Î ¾²±â ¶§¹®¿¡ ÀǿܷΠµ¿¼±ÀÌ ¸¹ÀÌ ²¿ÀÌÁø ¾ÊÀ½. ¿Ê ÀÔ°í ¹þÀ» ¶§ ¾îÂ÷ÇÇ ¾ÄÀ¸´Ï±ñ
|
290 |
|
2025-12-16 |
|||||||
¹ÎÃÊ´ÜÁ¶¹«·¡±â |
°Á ¿Ê¹æ2+ ÆÄ¿ì´õ ·ëÀÓ ¿Ê¹æ1Àº ¾ÈÀÔ´Â ¿Ê ³Ö¾îµÎ°í ¿Ê¹æ2¿¡ °Å¿ï Å«°Å ³öµÎ°í ÀÚÁÖ ÀÔ´Â ¿ÊÀ̶û ÈÀåǰ µÎ´Â ¿ëµµ
|
20 |
|
2025-12-16 |
|||||||
|
|
¹Ì¾â |
±×¸²¿¡ ³ª¿Âµ¥·Î Ã¥»óÀ̶û ħ´ë ³õÀ¸¸é ¹æ ²Ë Âü. Ã¥Àå Çϳª, ºôÆ®ÀÎ Çϳª, ÈÀå´ë Çϳª µé¾î °¥ ÀÚ¸® ¾øÀÌ µü ¸ÂÀ½¤»¤»¤»¤»¤»¤» Àú·± ¹æÀÌ µ¶¼½ÇÀÌÁö, ¹æÀ̳Ä? ¤»¤»¤»¤»
|
80 |
|
2025-12-16 |
||||||
|
|
½Å±Í·ç°¡¹Ð |
¾î¸°ÀÌ¿ë ÁýÀΰ¡ºÁ?
|
00 |
|
2025-12-16 |
||||||
|
|
µð¾Æ·ç°¡X |
¾ËÆÄ·ë ´Ù »©¹ö¸®°í ħ½Ç 2,3 ÇÕÃĹö¸®´Â°Ô ³ªÀ»°Å°°Àºµ¥
|
00 |
|
2025-12-16 |
||||||
|
|
´Ù¶÷Áã´ëÀåÇö½ÂÈñ |
Á¼¾Æ ÅÍÁö°Ù³× ¤»¤»¤»
|
00 |
|
2025-12-16 |
||||||
|
|
ÅÁ¼öÀ°´ëÂ¥ |
¹æ 5°³ ¤§¤§
|
00 |
|
2025-12-16 |
||||||
|
|
kluu |
Çѹø ½Ç¹°À» º¸°í½Í´Ù.. ¸¶³É ¿åÇÏ±ä ½È°í Àڳడ 2¸í ÀÌ»óÀÌÁö¸¸ ¸ðµÎ°¡ 40Æò´ë ÀÌ»óÀ» °¥ ¼ö ÀÖ´Â °Ô ¾Æ´Ñ ÀÌ»ó Àú·± ´ë¾Èµµ ¹æ¹ýÀÏ ¼ö ÀÖ´Ù°í´Â º¸´Âµ¥ ½Ç¹°ÀÌ ±Ã±ÝÇÔ
|
130 |
|
2025-12-16 |
||||||
|
|
Ç츮´À´Ô |
¹ßÄÚ´Ï È®ÀåÇØ¾ßÇÔ ¾ÈÇÏ¸é °³Á¼À½
|
00 |
|
2025-12-16 |
||||||
|
|
»ï¸ðÀÛ |
°°Àº °Ç¼³»ç ´Ù¸¥Å¸ÀÔµµ ÀÖ´õ¶ó.
|
00 |
|
2025-12-16 |
||||||
°ø±¸°ø»ï |
À̰Ŵ ¸Â´Âµ¥ À§¿¡²« ºÒ°¡Çغ¸À̴µ¥ ¹¹³Ä °°Àº 84Àε¥
|
70 |
|
2025-12-16 |
|||||||
|
|
È£À̺£º£ |
Á¦°¡ °úÇÐÀûÀ¸·Î Á¢±ÙÇØºÃ´Âµ¥ ±×¸²¼Ó ½´ÆÛ½Ì±Û ħ´ë°¡ 108°³³ª µé¾î°©´Ï´Ù 32ÆòÀÌ ¾Æ´ÏÁÒ
|
2620 |
|
2025-12-16 |
||||||
µµ¶óÅä¶ó |
½´ÆÛ½Ì±ÛÀÌ ´ë·« 0.7ÆòÁ¤µµ´Ï±î ¹ßÄڴϱîÁö 75ÆòÁ¤µµ°Ú³×
|
280 |
|
2025-12-16 |
|||||||
rkgnl99 |
¸ðµ¨ÇϿ콺 ½´ÆÛ½Ì±Û ħ´ë´Â À¯µ¶ ÀÛ´õ¶ó.
|
30 |
|
2025-12-16 |
|||||||
µµ¶óÅä¶ó |
¤¤¸ðµ¨ÇϿ콺¿¡¼± ÀϹÝÀûÀÎ SS(1100x2000)°¡ ¾Æ´Ñ S(1000X2000)Â¥¸®¸¦ ³õ´Â°æ¿ì°¡ ¸¹½À´Ï´Ù. ¼ºÀκ¸´Ù´Â ¾ÆÀ̵éÀÌ ¾²´Â »çÀÌÁîÁÒ.¾È¹æ¿¡µµ Äý(1500)º¸´Ù ÀÛÀº ´õºí(1400)À» ³õ´Â°æ¿ìµµ ¸¹½¿´Ù.
|
190 |
|
2025-12-16 |
|||||||
È£À̺£º£ |
¾Ñ ½Ì±Û·Î »ý°¢Çß¾î¾ßÇß±º~ ±×·¡µµ 32ÆòÀº ¿¡¹Ù´Ù~
|
10 |
|
2025-12-16 |
|||||||
rkgnl99 |
È¥ÀÚ¿Ô´Ï?
|
00 |
|
2025-12-16 |
|||||||
¾È¿ëÈÖ°è¼¼¿ä |
Á¦°¡ ºÐ¾ç ´ëÇà»ç¿¡ ÀÖ¾î¼ ¸ðµ¨ÇϿ콺 ¸¹ÀÌ µ¹¾Æ´ó°å´Âµ¥, º¸Åë ¸ðµ¨ÇϿ콺¿¡ ÀÖ´Â °¡±¸µé °ÅÀÇ Á¦ÀÛÇØ¼ ¾¹´Ï´Ù. ÀÏ¹Ý Ä§´ë »çÀÌÁ´Ù ±æÀ̵µ ´õ ªÀº°æ¿ìµµ ¸¹°í ±×³É ±¸»ö °®Ãç³õ°í ÀÛÀº °¡±¸ ½á¼ ¹æ ´õ Ä¿º¸ÀÌ°Ô ¸¸µé±â ¶§¹®¿¡ ¸ðµ¨ÇϿ콺 °¡±¸ »çÀÌÁî »ý°¢ÇÏ¸é ¾ÈµË´Ï´Ù
|
190 |
|
2025-12-16 |
|||||||
²¿ÄÞÀ̺üºü |
¼ºñ½º¸éÀû ¸¹ÀÌÁÖ¸é ½ÇÆò¼ö È® ´Ã±äÇÔ
|
00 |
|
2025-12-16 |
|||||||
|
|
¾î¼¶ó°Åº±½Ã³ª |
´Ùµé ÆòÀÌ º°·Î³× ³ Àú·¸°Ô »Ì¾Æ³õÀ¸¸é °³ÁÁÀ»°Å °°Àºµ¥ ¹°·Ð ¸ðµ¨ÇϿ콺 ½Ç¹°À» ºÁ¾ß°ÚÁö¸¸
|
10 |
|
2025-12-16 |
||||||
|
|
Çູ¾à±¹ |
¹æÀÌ ³Ê¹« ¸¹¾Æ Á¼¾ÆÁ®¼ ´ä´äÇÑ ´À³¦µéµí
|
20 |
|
2025-12-16 |
||||||
|
|
ÀÚ±î°í½ÃÇ»ç¶÷ |
Àú ±¸Á¶°¡ ¾ÈÁ¼À¸·Á¸é ÃÖ¼Ò 40Æò´ë µÇ¾î¾ß ÇÑ´Ù°íº½
|
130 |
|
2025-12-16 |
||||||
okita¼Ò°í |
ºÎ¸ð´ÔÁýÀÌ µü Àú ±¸Á¶Àε¥ Æò¼ö 60Æò Á¤µµ°Åµç...30Æò´ë°¡ Àú ±¸Á¶¿¡ ¹æ ³×°³ µÇ·Á¸é..»ó»óÀÌ Àß ¾ÈµÇ³×
|
40 |
|
2025-12-16 |
|||||||
|
|
»ýÀÏÀÌ4³â¿¡Çѹø |
µ¿»ý»ç´Â 48Æò ÁýÀÌ µü Àú ±¸Á¶¿¡ ³Ð¾î¼ ÄèÀûÇÑ ´À³¦À̾ú´Âµ¥.... 32ÆòÀ̸é....;;;
|
20 |
|
2025-12-16 |
||||||
|
|
¹ä¿À¹Ù |
¿äÁò ½ÅÃà ¾öû ³Ð°Ô ³ª¿È. ±¸ÃàÀ̶û ¼ºñ½º¸éÀû ÀÚü°¡ ´Þ¶ó¼. ±×¸®°í ÀÛÀº ¹æµéÀÌ Àú°É ´Ù ¹æÀ¸·Î º¸¸é ¾È µÇ°í 1-2°³ Á¤µµ´Â ÆÒÆ®¸®¶ó°í »ý°¢ÇØ¾ß ÇÔ. ±Ùµ¥ ±×Çå °Å °¨¾ÈÇØµµ ¾öû³ª°Ô ¹æÀÌ ¸¹±ä Çϳ×. º¸Åë 3-4°³´øµ¥
|
160 |
|
2025-12-16 |
||||||
|
|
¸¶¹ýµµÅ丮 |
Àü¿ë34Æò, °ø¿ëÆ÷ÇÔ48ÆòÁ¤µµ¸é Àú°Ô °¡´É Àú·¸°Ô °ø°£ºÐ¸®Çϸ顦 Á¼¾Æº¸Àϰǵ¥
|
10 |
|
2025-12-16 |
||||||
|
|||||||||||
|
|
¼±ÅÃÀå¾Ö1±Þ |
°Á ¿¾³¯ º£¶õ´Ù ºÎºÐ ½Ï È®Àå½ÃŰ¸é¼ »Ì¾Æ³½°Å °°Àºµ¥ ±×·¡µµ À߻̱ä Ç߳פ§¤§¤§
|
00 |
|
2025-12-16 |
||||||
|
|
Èæ°õµ¹ÀÌ |
À̻ڰԸ¸ ²Ù¸ç³õÀº ¸ðµ¨ÇϿ콺 º¸°í ȤÇÏ¸é ¾ÈµÊ
|
00 |
|
2025-12-16 |
||||||
|
|
Àü¼³K |
°Å½ÇÁ¼Àº°Ç ±¦ÂúÀºµ¥ ¾È¹æÁ¼Àº°Ç ´ä´äÇØ ¹ÌÄ¥ÅÙµ¥ ±×¸®°í Àú·± ¾îÁÝÀÝÀº Å©±â µå·¹½º·ë ½áº¸¸é ¾Ë°ÚÁö¸¸ ¾Æ¹«Çʿ䰡 ¾øÀ½. ºÎºÎ ¿Ê¹æ ¾²·Á¸é ÃÖ¼Ò ¹æÇϳª Å©±â ÇÊ¿äÇÔ
|
40 |
|
2025-12-16 |
||||||
|
|
´ÙÀÌÁ¦ÃËÄÚ |
°¡´ÉÇÒ°Å °°Àºµ¥ °¡±¸¸¦ ³Ê¹« ÂØ²ô¸Ä°Ô ±×·Á³ö¼ ±×·±µí¤»¤»
|
20 |
|
2025-12-16 |
||||||
|
|
ÇѼÁø |
¾È³çÇϼ¼¿ä. Áö³ª°¡´ø °ÇÃà»çÀÔ´Ï´Ù. ÀÌ·± ¹èÄ¡·Î 84ŸÀÔÀÇ ¼³°è°¡ Á¸ÀçÇϱä ÇÏÁö¸¸, °¡±¸ÀÇ ½ºÄÉÀÏÀÌ À߸ø ±×·ÁÁ® ÀÖ¾î ÁýÀÌ Ä¿º¸ÀÌ´Â Âø½Ã°¡ ÀÖ½À´Ï´Ù. ½ÇÁ¦·Î µé¾î°¡º¸¸é Àú·¸°Ô ±×¸° °¡±¸µéÀÌ ²Ë Â÷°Ô µé¾î°¥ °Å¶ó Á¼¾ÆÅÍÁý´Ï´Ù. °¨»çÇÕ´Ï´Ù.
|
1790 |
|
2025-12-16 |
||||||
Ư¼ö¹®ÀÚ¾ø¾î |
È®ÀåÇü¿¡ °¡±¸ ÀÛ°Ô ±×¸®°í ±â¸¸Àǵµ°¡ ³Ê¹« ¸í¹éÇÔ. ¹®º¸´Ù ħ´ë°¡ ÀÛÀ½. ½ÇÅ©±â´Â Àû´çÇØ º¸À̳ª °Å½Ç°ú ÁÖ¹æ ½Ä´çÀÌ ¾öû ÀÛÀ»µí.
|
210 |
|
2025-12-16 |
|||||||
|
|
¸®È÷ |
ÁÖÀÛÀÌ´Ï±î ½Å°æ¾²Áö ¸¶½Ê½Ã¿À. ´ë·« 17¡¿8.5·Î 144Á¤µµ·Î º¸ÀÔ´Ï´Ù.
|
200 |
|
2025-12-16 |
||||||
Leukerbad |
°Å½Ç Æø 5¹ÌÅÍ ³ÑÀ¸¸é Àü¿ë84´Â Àý´ë ¾Æ´ÏÁö ¤»¤»
|
140 |
|
2025-12-16 |
|||||||
±è¹ä¼¼ÁÙ |
Àü¿ë 144Á¦°ö¹ÌÅÍ. ¾à 43Æò. °ø±Þ 55Æò ¾ÆÆÄÆ® Á¤µµ µÇ°Ú³×
|
150 |
|
2025-12-16 |
|||||||
´äº£°¨ |
°¡·Î°¡¾Æ´Ñ ¼¼·Î°¡ 5¹ÌÅÍÀϰ۰Àºµð.... ±Ùµ¥ ÀÌ·¡³ª Àú·¡³ª ±¹Æò¿¡ ¾ËÆÄ·ë µÎ°³³ª »¬¶ó¹È ÀÛÀº¹æ 1,2°¡ ¾öû ÀÛÀ»°ÅÀÓ ±×¸²¿¡¼µµ º¸Åë ÀÛÀº¹æ µÎ°³Áß¿¡ Çϳª¿¡ ºÙ¹ÚÀÌÀå Àմµ¥ ¾ø°í ¾È¹æ¿¡µµ ºÙ¹ÚÀÌÀå Çϳª ¸ø³ÖÀ» »çÀÌÁîÀÓ ¾öû ¹Ì´Ï¸ÖÇÏ°Ô »ê´Ù¸é »ì¸¸ÇÒµí
|
00 |
|
2025-12-16 |
|||||||
ûÁÖ´ì |
À̰мºñ½º¸éÀû Àß »Ì¾Æ³»¸é °¡´ÉÇØ... ¾Æ¸¶ À§¾Æ·¡ ¿·±îÁö ¿µ²øÇؼ »Ì¾Æ³ÂÀ»°ÅÀÓ ¿ì¸®Áýµµ 84Àε¥ °Å½Ç 6¹ÌÅÍ ³Ñ¾î
|
10 |
|
2025-12-17 |
|||||||
ûÁÖ´ì |
³ª Áý º¸´Â°Å ÁÁ¾ÆÇؼ ã¾ÆºÃ´Âµ¥ ¼ºñ½º¸éÀû ¾î¸¶¹«½ÃÇÏ°Ô ¶§·Á³Ö¾ú³× ½Ç»ç¿ë¸éÀû 40Æò °¡±îÈ÷µÈ´ë
|
10 |
|
2025-12-17 |
|||||||
|
|
DynamicFOX |
³ ³»Áý û¼Òµµ Èûµé´Ù°í ¡¡°Å¸®¸é¼ ·Îº¿Ã»¼Ò±â »ò´Âµ¥ Àú±â´Â ¿Í.. û¼ÒÇÒ ¾öµÎµµ ¾È³´Ù ¤§¤§¤§
|
64 |
|
2025-12-16 |
||||||
DynamicFOX |
(ȥƴ ÁýÀÚ¶û)
|
360 |
|
2025-12-16 |
|||||||
¾î¼¶ó°Åº±½Ã³ª |
¿äÁò¿£ ¿ø·ë ¾Æ´Ñ ÀÌ»ó ·Îº¿Ã»¼Ò±â´Â ÀÖ¾î¾ßµÊ
|
00 |
|
2025-12-16 |
|||||||
¼ø°£ÀǽǼö |
¹¹¾ß ¿Ö ¿ì¸®Áý µµ¸é°¡Á®¿È....
|
00 |
|
2025-12-16 |
|||||||
DynamicFOX |
¹¹¾ß ³ª ³Ê³×Áý µµ¸é ¾ðÁ¦ ÈÉÃÄ¿È
|
00 |
|
2025-12-16 |
|||||||
|
|||||||||||
³´³¹³¸³µ³·³®³º |
·Îû ¼Ö±î ÀÌÁ¦ Çʼö°¡ÀüÀÓ. û¼Ò °Ì³ª ÀßÇÔ.
|
00 |
|
2025-12-16 |
|||||||
|
|
±ÜÇô¼¿È |
°Ç¹°±¸Á¶°¡ ³×¸ð¹ÝµíÇØ¾ß ÄèÀûÇѵ¥ ¾ËÆÄ·ë 1 Àú·¸°Ô »ÌÀ¸¸é Á» ºÒÆíÇÒ µí
|
00 |
|
2025-12-16 |
||||||
|
|
ÇÏ¶ó¾Æºü |
±×¸² ÀÌ»óÇÏ°Ô ±×·Á³ù´Âµ¥. Àú ±¸Á¶¸é. ħ´ë°¡ ¹æ Àý¹Ý °¡±îÀÌ Â÷ÁöÇØ¾ß µÊ;
|
90 |
|
2025-12-16 |
||||||
ÇÏ¶ó¾Æºü |
ÃÖ±Ù ºÎ¸ð´Ô À̻簡½Å´Ù´Âµ¥. Àú·±½ÄÀ¸·Î ¹æ Âɰ³³õÀº°Å ½È´Ù°í Å«¹æ µÎ°³°¡ ÀÖ¾î¾ß µÈµ¥¼ ¿½ÉÈ÷ ºÃ´Âµ¥... ¿äÁòÀº ¹æÀ» Çϵµ Âɰ³³ö¼ Å«¹æ ÀÖ´Â ¾ÆÆÄÆ®°¡ °ÅÀÇ ¾ø´õ¶ó °Ü¿ì ³ª¿À¸é 10³â ÀÌ»óµÈ ¾ÆÆÄÆ®¿¡¼³ª °£È¤ º¸ÀÓ.
|
20 |
|
2025-12-16 |
|||||||
¶ó¹ð¶ó¸®·± |
¹ßÄÚ´Ï È®Àå ¾È µÈ ¹æ µÎ°³ 24Æò ±¸Ãà ¾ÆÆÄÆ®°¡ Áø½É Áø¸®ÀÓ
|
10 |
|
2025-12-16 |
|||||||
¼ø°£ÀǽǼö |
Áö±ÝÁýÀÌ 84¿¡ 10³âÂëµÆ´Âµ¥ ¹æ3°³+¿ÃÈ®ÀåŸÀÔÀε¥ ÀÌ°Ô ¸¶Áö³ë¼±Àεí....;;
|
10 |
|
2025-12-16 |
|||||||
|
|||||||||||
ÇÏ¶ó¾Æºü |
¹æµÎ°³ 24ÆòÇü ±¸Ãà ¾ÆÆÄÆ®. µü ¿øÇÏ´ø°Ô À̰Å. ³ªÀ̵å½Å ºÎ¸ð´Ô »ì±â¿¡ µü ÁÁÀºµ¥. ±×°Ô ±×·¸°Ô ±¸ÇϱâÈûµçÁö óÀ½ ¾Ï.
|
10 |
|
2025-12-16 |
|||||||
¶ó¹ð¶ó¸®·± |
24Æò ¹æ 2°³ ±¸Ãà »ì´Ù°¡ ÇÑ´Þ Àü¿¡ 24Æò ¹æ 3°³ ±¸Ãà ¿Ô´Âµ¥ ¾È¹æ ÀÛÀº¹æ ÈÀå½Ç °Å½Ç ÁÖ¹æ ¾îµô °¡µµ »çÀÌÁî°¡ ´Ù ¾Ö¸ÅÇÔ
|
00 |
|
2025-12-16 |
|||||||
|
|
º£À̽º»§»§ |
°Å½Ç ¹æ ³Ð¾îºÁ¾ß ±×´ÚÀ̶ó ¿ÀÈ÷·Á ÁÁÀºµ¥? ±¸Ãà ¾ÆÆÄÆ® °Å½Ç ¹æ ¾µµ¥¾øÀÌ °³ ³Ð°í ÆÒÆ®¸® ¾øÀ¸¸é ´õ ÁöÀúºÐÇØº¸ÀÓ
|
00 |
|
2025-12-16 |
||||||
|
|
¼ø°£ÀǽǼö |
³»°¡ 32Æò»ì±äÇϴµ¥ ¹æÀ̳оî¾ß Åׯ®¸®½º ½¬¿îµ¥ ³Ñ ÀÛÀ»µí... ¹°·Ð µÑÀÌ»ì°Å³ª ¾Ö1ÀÖ´ÂÁý ±âÁØ¿¡¼± Àú°Ô Á©ÁÁÀ»°Í°°±äÇѵ¥... ¿äÁòÀº °Å½Ç ÀÛ°í ¹æ¸¹ÀÌ»©´Â°Ô À¯ÇàÀÌ´õ¶ó.
|
00 |
|
2025-12-16 |
||||||
|
|
µ¿³×ÈÆ³² |
°Å½ÇÀº ³Ï´Ù¹Ú¾ÒÀ¸´Ï ±×·³ ±×¿Ü °ø°£ÀÌ ´Ù ÁÙ¾î¾ß °¡´ÉÀ̰í Àú°Ô µÉ·Á¸é ½ÇÁ¦´Â ¾ËÆÄ·ëÀ̶û °¢ ¹æµéÀÌ Àú Æò¸éµµº¸´Ù ÈξÀ Á¼¾Æ¾ß °¡´ÉÇÔ ¾Æ´Ï¸é ¾Æ¿¹40Æò´ë Æò¸éµµ°¡ À߸øµé¾î°£µí
|
10 |
|
2025-12-16 |
||||||
|
|
±è¿ìÄ¡ |
µµ´ëü ħ´ë ¾ó¸¶³ª ÀÛÀº°Å¾ß ¾Ö¿Ï°ß¿ëÀ̳İí
|
40 |
|
2025-12-16 |
||||||
|
|
o´«ÆÃÁ·o |
³ª ½ÅÃà»ç´Âµ¥ ¿äÁò ¹æµé ħ´ë ³ÖÀ¸¸é ħ´ë°¡ ¹Ý ÀÌ»ó Â÷ÁöÇÑ´Ù.,,, ħ´ë ³ÖÀ¸¸é Ã¥»ó ³ÖÀ» °ø°£ÀÌ ¾È³ª¿È ¤»¤» ¾öû Á¼¾Æ¼ ÁøÂ¥ ÀÛÀº Ã¥»ó ½áµµ Â÷·ÈÀÚ¼¼·Î ´©¿ï¸¸ÇÑ °ø°£ °Ü¿ì ³ª¿È
|
30 |
|
2025-12-16 |
||||||
|
|
ÇØ»ê¹°Àü¹®°¡ |
°¡±¸³Ö±â°¡ °Ì³ª Èûµé°Å°°Àºµ¥ ¤»¤»
|
00 |
|
2025-12-16 |
||||||
|
|
¿ä³¶ |
ºñ½ÁÇÑ ±¸Á¶ Áý¿¡¼ »ç´Âµ¥ ¾È¹æ°ú °Å½ÇÀº ³Ð°Ô Àß ºüÁ³´Âµ¥ ³ª¸ÓÁö ¹æµéÀÌ ±¸Ãà¿¡ ºñÇØ Á¶±Ý¾¿ ÀÛÀ½. ±Ùµ¥ ¾ÆÁÖ¾ÆÁÖ ±ØÇÑÀÇ È¿À²·Î ±¸Á¶¸¦ »«°ÇÁö, °¡±¸°°Àº°Å µüµü ¹èÄ¡ÇØ¼ ¹æ ²Ù¹Ì´Â Äè°¨ÀÌ ÀÖ´õ¶ó. ¾Öµé ¹æÀ¸·Î ¾²¸é ħ´ë, ¿ÊÀå ,Ã¥»ó, ´Ü½º Çϳª¾¿ µüµü µé¾î°¥ ¼ö ÀÖ´Â Å©±â. ¾ËÆÄ·ëÀº â°í°â ³» ÄÄÇ»ÅÍ ¹æÀ¸·Î ¾²´Âµ¥ µü ÁÁÀ½.
|
00 |
|
2025-12-16 |
||||||
|
|
¼Ö¹Ø |
¸¿¼Ò»ç. °ø±Þ 30 ÈĹÝÀº µÇ¾îº¸ÀδÙ.
|
00 |
|
2025-12-16 |
||||||
|
|
¿ä³ª¾Æ |
Àú ¾ùºñ½ÁÇÑ Áý °¡ºÃ´Âµ¥ ¾È¹æ ħ´ë°¡ °ÅÀÇ ³¡±îÁö ²ËÂ÷ÀÖ´õ¶ó..
|
00 |
|
2025-12-16 |
||||||
|
|
±è¹ä¼¼ÁÙ |
Àú°Å °ø±Þ 65~75Æò ÆÇ»óÇü ¾ÆÆÄÆ® ±âº» ±¸Á¶Àε¥ ´©°¡ Àú°É 34Æò¿¡´Ù Àû¿ëÇØµ×³Ä
|
10 |
|
2025-12-16 |
||||||
|
|
¿©¸§°¡¶÷ |
ÀÚ½Ä ¸¹Àº ÁýÀº ±¦Âú°Ú³×
|
00 |
|
2025-12-16 |
||||||
|
|
BENIHIL |
¹æ Á¶¿Â³ª Á¼°Ú³×..
|
00 |
|
2025-12-16 |
||||||
|
|
ÆÛ¸®¿Õ |
ÆÒÆ®¸®´Â ±¸µ¶¼ºñ½¼°¡?
|
00 |
|
2025-12-16 |
||||||
|
|
´ëȸí¢±â±ÍÂú¾î |
eÆíÇÑ ¼¼»ó ¤»¤»
|
00 |
|
2025-12-16 |
||||||
|
|
°¡³ªÆÄÆÄ |
¿ì¸®Áý 84ŸÀÔ 36ÆòÀε¥ ¿ì¸®Áýº¸´Ù Ä¿º¸ÀÌ³× Àú±â°¡
|
00 |
|
2025-12-16 |
||||||
|
|
³ª´²µå½ÇºÐ |
ħ´ë Áֹ氡±¸ Å©±â 2¹è·Î Çϸé ü°¨¿Ãµí. ¾ó¸¶³ª ÀÛÀºÁö
|
00 |
|
2025-12-16 |
||||||
|
|
À̰ÇÁ¤¸»¾ø°ÚÁö |
Çö½Ç¹Ý¿µÆÇ
|
60 |
|
2025-12-16 |
||||||
°íÅ© |
À̰͵µ ³ª»ÚÁö ¾ÊÀºµ¥..?
|
10 |
|
2025-12-16 |
|||||||
¼ø°£ÀǽǼö |
¾ÖµéÀÖ´ÂÁýÀÌ¸é ¹æ¸¹Àº°Ô³ªÀ»¼öµµ... °¢¹æÁÙ¼öÀÖÀ¸´Ï
|
20 |
|
2025-12-16 |
|||||||
À̰ÇÁ¤¸»¾ø°ÚÁö |
¶Ë½Î¸é¼ ¼¼¼öÇÒ¼ö ÀÖ¾î¼ ÁÁ±äÇÕ´Ï´Ù
|
10 |
|
2025-12-16 |
|||||||
|
|
ÃÖÁ¾º´±â¶õ |
30Æò ¹æ4°³¸é ½Ì±Ûħ´ë, ¿ÊÀå, ħ´ë ³ÖÀ¸¸é ²ËÂ÷µå¶ó ÀáÀÚ°í °øºÎÇϴµ¥´Â Å©°Ô ¹®Á¦¾ø±ä Çѵ¥ Á¦ÀÏÅ« ¹®Á¦´Â ÁÖ¹æ °Å½ÇÀÌ ¾Ö¸ÅÇÔ
|
00 |
|
2025-12-16 |
||||||
|
|
°£Àå¹öÅ͹ä |
¿ì¸®ÁýÀÌ °Å½Ç Âɰ³¼ ¾ËÆÄ·ëÀ¸·Î ¸¸µé¾îÁÖ´Â ¿É¼ÇÀ̾ù´Âµ¥, ÈÄȸÇÔ °Å½Çµµ Á¼°í, ºÎ¾ý¿¡µµ 6ÀÎ¿ë ½ÄŹ ³õ°í ½Í¾ù´Âµ¥ ºÒ°¡´ÉÇϰí
|
00 |
|
2025-12-16 |
||||||
|
|
ÀÚµ¿ºÐ»ç¶óÀ϶ô |
Áö¹æ ±¸ÃàÀº ¼ºñ½º¸éÀûÀÌ ¾î¸¶¾î¸¶Çϵ常
|
00 |
|
2025-12-16 |
||||||
|
|
abc12345 |
Á¦´ë·Î ¾Æ´Â»ç¶÷ÀÌ ¾ø³× ¤¾¤¾ ±×¸²Àº ¹ßÄÚ´ÏÈ®ÀåµÈ µµ¸éÀ̰í È®ÀåÀü µµ¸éÀº ¾øÁö¸¸ â¹®ÀÌ À§,¾Æ·¡,¿À¸¥ÂÊ ¼¼±ºµ¥·Î ³°É·Î ºÁ¼ 3¸é¿¡ ¹ßÄڴϰ¡ Àִٴ°ÅÀÓ. ¹ßÄÚ´Ï´Â ¼ºñ½º¸éÀûÀ̶ó ¾ÈÁ൵ ±×¸¸À̶ó 1¸é¸¸ ¹ßÄÚ´Ï ÀÖ´Â ¾ÆÆÄÆ®µµ ¸¹À½ Àú±ä ¹ßÄÚ´Ï1¸é, 2¸é¸¸ ÀÖ´Â 34Æòº¸´Ù ½ÇÁ¦·Î ÈξÀ ³ÐÀ½. ±¸Á¶¿¡ µû¶ó 40Æòº¸´Ù ³ÐÀº 34ÆòÀÌ »ý±æ¼öµµ ÀÖÀ½. ±¦È÷ »ç¶÷µéÀÌ ¹ßǰÆÈ¾Æ°¡¸ç ¸ðÇϰ¡¼ Áý±¸°æÇÏ´Â°Ô ¾Æ´Ï¿¡¿ä ¤¾¤¾
|
10 |
|
2025-12-16 |
||||||
|
|
Gaonnurii |
Àú°Ô °¡´ÉÇѰ¡ ½ÍÀºµ¥.. ½ÉÁö¾î °Å½ÇÀÌ 5¹ÌÅͶó°í..? 32ÆòÇü¿¡ °Å½ÇÆø º¸Åë 4.3~4.5Àε¥ ±×·¯°íµµ ¾ËÆÄ·ë Çϳª »©±â°¡ ½±Áö¾ÊÀºµ¥. Àú°Ô ÁøÂ¥ 32ÆòÀÌ¸é ¹æ µÎ°³´Â ¸ø¾µ¸¸Å Á¼¾Æ¾ß Á¤»óÀÓ
|
00 |
|
2025-12-16 |
||||||
|
|
N¾ø´ÂÂ÷ |
ö±Ù: ³Ð¾î? ¤¾¤¾ ±Ý°¥°Ô ¤¾¤¾
|
00 |
|
2025-12-16 |
||||||
|
|
DSENS7 |
¹ßÄڴϰ¡ ¸¹Àº ±¸Á¶¶ó °¡´ÉÇÑ °Å¿¡¿ä. ¹ßÄÚ´Ï´Â Æò¼ö¿¡ ¾È µé¾î°¡´Â ¼ºñ½º ¸éÀûÀÌ¶ó °°Àº 84¿©µµ ÈξÀ Å©°Ô °ø°£ÀÌ ³ª¿À´Â °Å. ¾ËÆÄ·ë2°³, µå·¹½º·ëÀÌ ¹ßÄÚ´Ï È®ÀåÀ¸·Î ³ª¿Â °ø°£. ºÎ¾ý °ø°£¸¸ Á» ÀÛ°í °Å½ÇÀ̳ª ³ª¸ÓÁö ¹æµéÀº µ¿Æò¼ö¶û ºñ½ÁÇÒ µí
|
20 |
|
2025-12-16 |
||||||
|
|
ÆÄ¸£ÄÚ |
¿ì¸®Áý ¹æ3 È2 / 32ÆòÀε¥ À½ ¿ì¸®Áý ¿¹½Ã·Î »ó»óÇØº¸´Ï ÃæºÐÈ÷ °¡´ÉÇÏ´Ù°íº½
|
00 |
|
2025-12-17 |
||||||
»ó´ë¹æ¿¡ ´ëÇÑ ¹è·Á´Â ³×ƼÄÏÀÇ ±âº»ÀÔ´Ï´Ù.°Ô½Ã¹°¿¡ »ó°ü¾ø´Â ´ä±ÛÀ̳ª ÃßõÀ¯µµ¼º ´ä±ÛÀ» ´ÞÁö ¸¶¼¼¿ä.
½ºÆ÷ÀÏ·¯¼º ´ä±ÛÀÌ ½Å°íµÇ°Å³ª ¹ß°ßµÇ¸é ÀÌÀ¯ºÒ¹® »èÁ¦ ȤÀº Á¤ÇÐó¸® µË´Ï´Ù. À¯ÀÇ ºÎŹ µå¸³´Ï´Ù.
| ¡ã ´ÙÀ½±Û | ¾ö¸¶¶û ³ª¶û Àý´ë īī¿À³»ºñ ¾È¾¸ | ºÒ²Éµ¹³ª¹« |
|
2025-12-16 [11:41] |
| ¡å ÀÌÀü±Û | ½ÇÁ¦ ¿¬¾ÖÀÇ ¸ð½À | ³¾Á¡½É¹¹¸ÔÁö |
|
2025-12-16 [11:25] |
